نبذة مختصرة
التيار المقنن للقواطع المقولبة DAM3-1600 يصل إلى 1600 أمبير. هذه القواطع مناسبة لحماية دوائر تويع القدرة مع تيار متناوب بتردد من 50 إلى 60 هيرتز وتيار تشغيل مقنن 1000 أمبير. ويمكن استخدامها أيضاً في المحركات الكهربائية للحماية من تيار بداية التشغيل الغير مستمر وزيادة الجهد علاوة عن الحماية من دوئر القصر وحالات إنخفاض الجهد.
بالمقارنة مع فئة القواطع DAM1، فإن فئة قواطع DAM3 صممت بحجم أصغر، سعة فصل أعلى، تحقق توفير إضافي للطاقة.
المتغيرات الكهربائية للقواطع المقولبة DAM3-1600| التيار المقنن لقياس الإطار Inm [A] | 1600 | |||
| التيار المقنن [A] | 1000 1250 1600 | |||
| عدد الأقطاب | 3 / 4 | |||
| جهد التشغيل المقنن | (AC)50-60HZ [V] | 400/690 | ||
| DC [V] | 250/1000 | |||
| جهد الصمود النبضي المقنن Uimp [KV] | 8 | |||
| جهد الفصل (العزل) المقنن Ui [V] | 750 | |||
| جهد الإختبار عند التردد الصناعي لمدة دقيق واحدة [V] | 3000 | |||
| سعة القطع القصوى المقننة لتيار القصر Icu [KA] | S | H | G | |
| (AC)50-60HZ 220/230V [KA] | 80 | 105 | 130 | |
| (AC)50-60HZ 400/415V [KA] | 55 | 70 | 100 | |
| (AC)50-60HZ 690V [KA] | 20 | 25 | 30 | |
| (DC)250V- قطبين على التوالي | 50 | 65 | 80 | |
| (DC)500V- قطبين على التوالي | 22 | 30 | 40 | |
| (DC)750V-4 أقطاب على التوالي | 42 | 55 | 68 | |
| (DC)1000V-4 أقطاب على التوالي | 35 | 45 | 55 | |
| سعة قطع دائرة القصر المقننة في الخدمة، Ics [KA] | ||||
| (AC)50-60HZ 220/230V [%Icu] | 60% | 60% | 60% | |
| (AC)50-60HZ 400/415V [%Icu] | 60% | 60% | 60% | |
| (AC)50-60HZ 690V [%Icu] | 60% | 60% | 60% | |
| فئة الاستخدام (EN 60947-2) | A | |||
| حالة العزل | Bitmap | |||
| المعايير المرجعية | IEC/EN 60947-2/GB 14048.2 | |||
| قابلية التبادل | Bitmap | |||
| الإصدارات | ثابت | Bitmap | ||
| مقبس (Plug-in) | Bitmap | |||
| إستخراج (Draw-out) | Bitmap | |||
| التحمل | إجمالي الدورات | 5000 |
| التحمل الكهربائي | 1000 | |
| التحمل الميكانيكي | 4000 | |
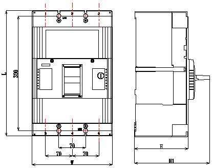
| الأبعاد الأساسية – الإصدار الثابت | 3/4 أقطاب W[mm] | 210/280 |
| 3/4 أقطاب H[mm] | 140 | |
| H1[mm] | 196 | |
| 3/4 أقطاب L[mm] | 328 |
مقدمة عن المنتج
قواطع الدائرة المقولبة DAM3-1600 تقطع بشكل آلي التيار عندما يزيد عن القيمة المظبوطة لتيار الإعتاق. القواطع المقولبة نسبة إلى العازل البلاستيكي المستخدم كإطار للجهاز لعزل الموصل ومكونات التأريض المعدنية.
مبدأ العمل
التلامس الرئيسي لقاطع الدائرة المقولبة DAM3-1600 تتم مناولته يدوياً أو قفله كهربائياً. بعد قفل الملامس الرئيسي، آلية الإعتاق الحرة تقفل الملامس الرئيسي حتي يصبح الوضع المقفل. ملف الإعتاق عند زيادة التيار وعنصر الإعتاق الحراري تكون موصلة على التوالي مع الدائرة الرئيسية. ملف الإعتاق عن إنخفاض الجهد ومصدر الطاقة الكهربائية توصل على التوازي.

شركة DADA لصناعة القواطع الكهربائية مثل قواطع الدائرة MCB، قواطع الدائرة لجهاز التيار الفرقي RCD، القواطع الكهربائية ELCB، القواطع الكهربائية RCBO، قواطع كهربائية RCCB جهاز التيار الفرقي، قواطع الدائرة المقولبة MCCB، حيث بدأت شركة DADA مجال التصنيع للقواطع الكهربائية منذ سنة 2004، ووفرت أنواع مختلفة من قواطع الدائرة الكهربائية لعملائها في السوق الدولية.
منتجات ذات صلة
قواطع كهربائية، قواطع الدائرة المقولبة MCCB، قواطع دائرة الجهد المنخفض، أجهزة وقاية الدائرة الكهربائية
Shanghai Dada Electric Co., Ltd
العنوان: No.171 Yezhuang Road, Zhuanghang, Fengxian, Shanghai
الاتصال بشخص: السيد Weng
الهاتف: +86-21-57467000
الفاكس: +86-21-57467301
البريد الإلكتروني: charlotte.weng@foxmail.com
